
一、產物用處
本產物屬分散型夾雜器,合用于高爐富氧管道,氧氣與氛圍充實夾雜,進步熄滅溫度。本產物也完整可利用于將兩種差別重度的氣體停止夾雜的工藝裝配中。
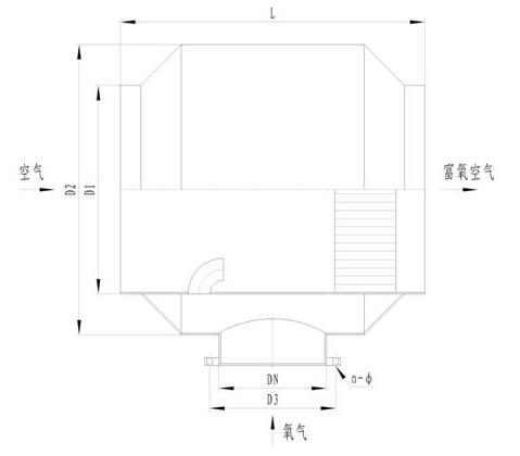
二、布局特色
本產物由內、外筒體,導流筒和夾雜單位構成(見下圖)。氧氣進入兩筒體之間的空間后經導流筒引入氛圍流中完成初混,而后進入夾雜單位,被屢次切割分流,從管尾出來的已是平均夾雜的富氧氛圍。
三、形狀尺寸及首要手藝參數

| 公稱通徑 | 內筒長 | 內筒內直徑 | 外筒直徑約 | 活套法蘭孔位 | 毗連孔 | 供氧精準流量 | 風氣客流量 |
| DN | L | D1 | D2 | D3 | n-Φ | Nm3/h | Nm3/h |
| 400 | 1350 | Φ820×8 | Φ1120×8 | Φ495 | 16-Φ22 | 5650 | 4500 |
| 500 | 1500 | Φ1020×8 | Φ1420×8 | Φ600 | 20-Φ22 | 8830 | 7100 |
| 600 | 1750 | Φ1220×8 | Φ1620×8 | Φ705 | 20-Φ26 | 12700 | 10200 |
| 700 | 2000 | Φ1420×8 | Φ1920×10 | Φ810 | 24-Φ26 | 17300 | 13800 |
| 800 | 2200 | Φ1620×10 | Φ2220×10 | Φ920 | 24-Φ30 | 22600 | 18000 |
| 1000 | 2500 | Φ2020×10 | Φ2624×12 | Φ1020 | 24-Φ30 | 35300 | 28300 |
| 1200 | 2800 | Φ2420×12 | Φ3224×12 | Φ1120 | 28-Φ30 | 50900 | 40700 |
注:
①氛圍壓力取0.08MPa,氧氣壓力取0.18~0.27MPa;計較流量時氛圍流速取2.5m/s、氧氣流速12.5m/s。
②示例:公稱通徑為800的氧氣夾雜器:OXV-800。
③本產物為焊接式。用(yong)戶若需用(yong)法(fa)蘭毗連(lian),請在條約中說(shuo)明選 用(yong)法(fa)蘭的規范的和(he)規格。




